Request a FREE Instant Valuation

Selan Gardens, Hayes

£499,950 3 1


Property Features

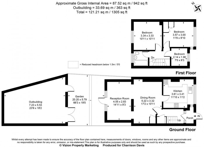
  • EXTENDED 3 BEDROOM TERRACED HOUSE
  • DOUBLE WIDTH DETATCHED GARAGE VIA REAR ACCESS (REQUIRES ATTENTION)
  • GOOD SIZED KITCHEN
  • 2 RECEPTION ROOMS
  • OFF STREET PARKING TO THE FRONT
  • SOUGHT AFTER RESIDENTIAL NO THROUGH ROAD
  • CLOSE TO YEADING LANE WITH DIRECT BUS SERVICE TO HAYES & HARLINGTON ELIZABETH LINE STATION

Full Details

VIEWING HIGHLY RECOMMENDED FOR THIS EXTENDED 3 BEDROOM TERRACED HOUSE SITUATED IN A POPULAR RESIDENTIAL NO THROUGH ROAD CLOSE TO YEADING LANE WITH ITS DIRECT BUS SERVICE INTO HAYES TOWN AND HAYES & HARLINGTON ELIZABETH LINE STATION, A CHOICE OF SCHOOLS AND ACCESS TO SOUTHALL BROADWAY AND THE HAYES-BY-PASS FOR HEATHROW AND THE M4 LONDON. The property has gas central heating and double glazed windows with the accommodation giving you an extended porch, entrance, hall spacious kitchen, larger dining room and a lounge extension to the rear Upstairs has 3 bedrooms, a bathroom and loft space suitable for conversion stpp. Outside has good a sized garden with rear access to a detached double garage (in need of repair) plus off street parking to the front.

Arrange a Viewing

* indicates a required field within the form.

This site is protected by reCAPTCHA and the Google Privacy Policy and Terms of Service apply.


Request a Valuation