Request a FREE Instant Valuation

Westacott, Hayes

£518,000 2 1


Property Features

  • 2 DOUBLE BEDROOM SEMI DETACHED BUNGALOW
  • NO ONWARD CHAIN
  • WELL PRESENTED
  • GENEROUS SIZED GARDEN
  • OWN DRIVE PARKING SEVERAL CARS
  • SCOPE FOR A LARGE REAR EXTENSION STPP
  • SPACIOUS ROOMS
  • GCJH + LEADED LIGHT STYLE DOUBLE GLAZED WINDOWS
  • SOUGHT AFTER AREA OF NORTH HAYES SHORT WALK TO THE UXBRIDGE ROAD
  • GARAGE SPACE stpp

Full Details

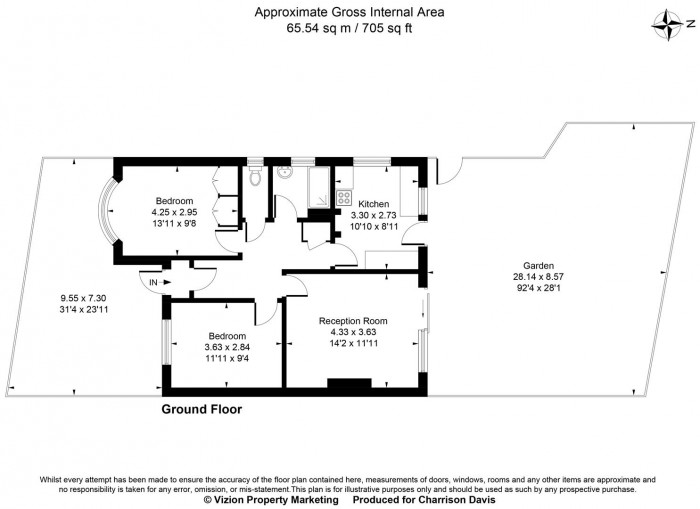
A RARE OPPORTUNITY TO ACQUIRE A MUCH SOUGHT AFTER 'CAVENDISH' BUILT, 2 DOUBLE BEDROOM SEMI DETACHED BUNGALOW IN THIS QUIET RESIDENTIAL CRESCENT OFF PARK LANE, NORTH HAYES. WITH NO ONWARD CHAIN THIS WELL PRESENTED AND SPACIOUS BUNGALOW HAS SCOPE TO EXTEND TO THE REAR AND A SUBSTANTIAL REAR GARDEN WITH A PAVED PATIO, SHRUBS, FLOWERS AND A LARGE LAWNED AREA. The property benefits from gas central heating (modern Worcester combination boiler) and leaded light double glazed windows. The accommodation has an entrance hall with doors to all rooms, spacious lounge, fitted kitchen/breakfast room, 2 large double bedrooms, modern shower room/separate toilet and loft space. Outside has a generous sized rear garden, shared driveway to potential garage space and its own drive to the front parking several cars. Westacott is a quiet residential area located within a short walk to the Uxbridge Road with its many shopping facilities and transport links for Uxbridge, Southall, Heathrow and Hayes Town (Hayes & Harlington Elizabeth line station).

Arrange a Viewing

* indicates a required field within the form.

This site is protected by reCAPTCHA and the Google Privacy Policy and Terms of Service apply.


Request a Valuation